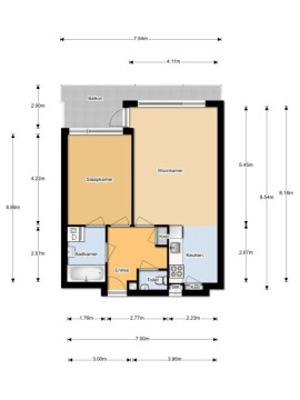
Appartement huren: Etna in Amstelveen

  • 55 m2
  • 2 kamers
  • ? Begindatum
  • Onbepaalde tijd
Op deze pagina vind je alle informatie over dit Appartement in Amstelveen. Als je vragen hebt kun je contact opnemen met de aanbieder.

Nee

Direct bij de eigenaar

Borg
1145

Garantiestelling
Mogelijk

Huurtoeslag
Niet mogelijk

Inkomen eis
3,2 X Maandhuur Bruto

Huurtermijn
Onbepaalde termijn

Oplevering
Kaal

MEER

Algemene informatie

Stad Amstelveen
Wijk/buurt: In de Wolkenbuurt
Inschrijven gemeente: Ja
Opleverniveau: Kaal
Huisgenoten: Geen
Begindatum: Vraag de adverteerder
Bezichtiging In overleg

Faciliteiten

Eigen badkamer
Eigen keuken
Eigen toilet
Eigen voordeur
Vraag de adverteerder
Vraag de adverteerder
Eigen woonkamer
Tonen op kaart